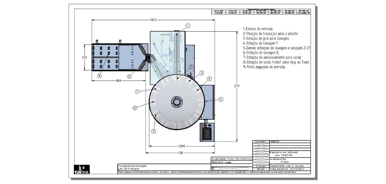
Lavadora de Frascos Automática - LFA 9000

Lavadora de Frascos


... em construção